Description de l'offre
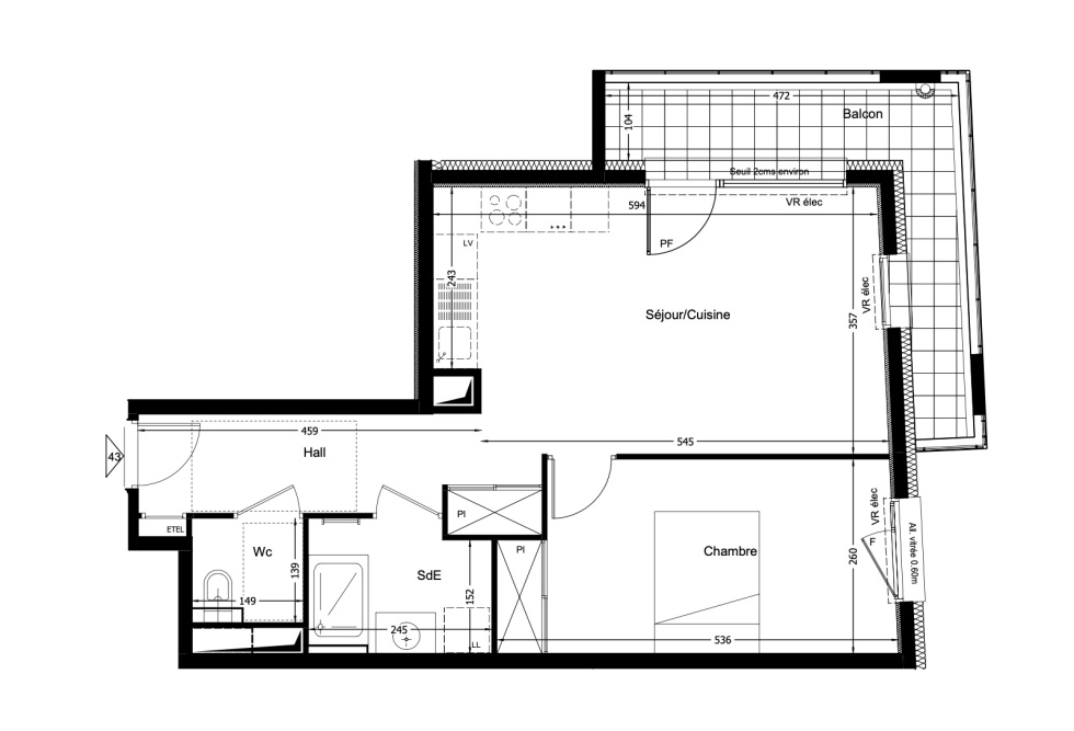
LOI PINEL. Dans une copropriété neuve, au quatrième étage, découvrez ce T2 d’une surface de 46,79m2. Il se compose d’une entrée avec rangements, un wc séparé, un séjour avec cuisine équipée donnant sur un balcon de 8m2, une chambre, SDB. Une cave complète le bien. Attention: logement soumis à la LOI PINEL : conditions de revenus des locataires (Revenus fiscal de réference : Composition du foyer fiscal: Personne seule 41 855 € / Couple 62 555 € / Couple + 1 personne à charge 75 194 €). Pour postuler, merci de bien vouloir répondre à l'annonce nous vous enverrons un lien sécurisé afin de déposer votre dossier. Les visites seront réalisées sur dossier validé par nos soins uniquement.
