Description de l'offre
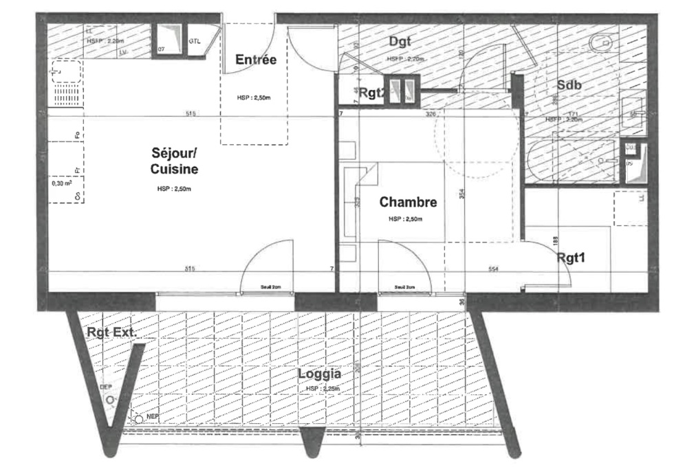
Dans une résidence neuve, découvrez ce T2 neuf de 48m2 au troisième étage composé d'un bel espace de vie de 22 m2 avec espace cuisine donnant accès à un beau balcon/ loggia de 12 m2, une grande chambre avec dressing de 15m2, SDB et WC. Une cave complète l'ensemble. Idéal premier achat ou investissement. Uniquement chez HOME.
Les informations sur les risques auxquels ce bien est exposé sont disponibles sur le site Géorisques
